VICTRIX Pro 120 (2015-ig)

Rendelési kód | 3.024487
Kifutott termék, elérhető ERP verzióban.
  • 121.7kW Névleges fűtési teljesítmény
  • - Névleges HMV teljesítmény
  • Fali fűtő (tároló előkészítéssel) Működés módja
  • - Szezonális hatásfok (2010/30/EU)
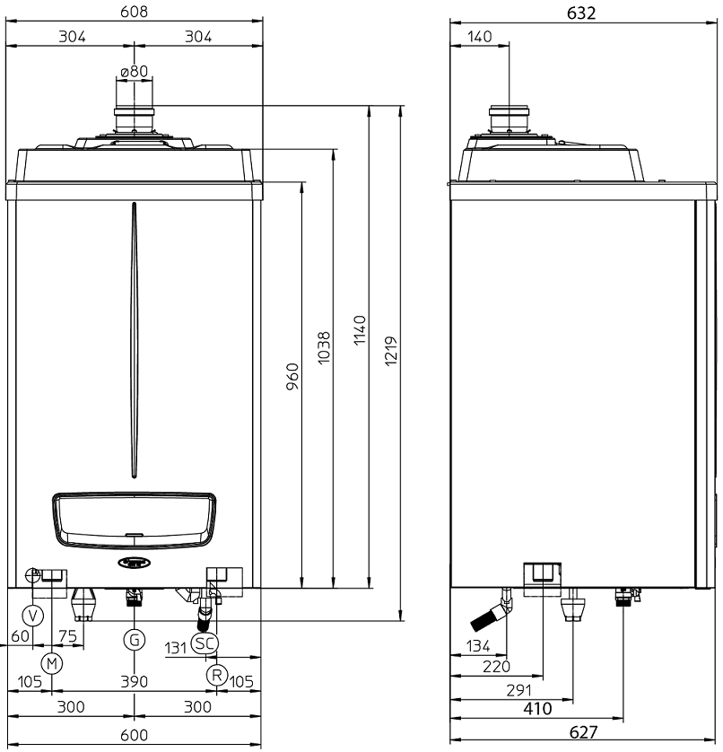
  • 1038 / 600 / 627 Méret (mag/szél/mély)

Bemutatás

A VICTRIX Pro 120 kondenzációs gázkazán egy nagy hőteljesítményű (121,7 kW @ 50/30 C), falra szerelhető készülék. Indirekt tároló csatlakoztatásával képes használati melegvizet előállítani. Nagy teljesítménye és kaszkádba kötési lehetősége miatt társasházak, ipari létesítmények ideális megoldása lehet. A digitális kaszkád és zóna vezérlő csatlakoztatásával lehetőség van három fűtési kör (egy direkt kör és maximum két keverőszelepes, vagy további két direkt kör) kialakítására, valamint egy indirekt HMV tároló vezérlésére. A kaszkád szabályozó akár 8 VICTRIX Pro készüléket is képes vezérelni, folyamatos teljesítmény-szabályozás mellett. A kaszkád szabályozó egységekből akár 5 is összeköthető, így összesen 15 fűtési kör (5 direkt és 10 keverőszelepes vagy direkt) kialakítása lehetséges, valamint 5 HMV tároló vezérlése. Fűtési rendszer kialakításához a készüléket hidraulikai váltón keresztül kell a rendszerhez csatlakoztatni, mert a készülék szivattyúja nem képes a teljes rendszerben lévő vizet keringtetni.

ROZSDAMENTES ACÉL HŐCSERÉLŐ

A fűtő köri hőcserélő rozsdamentes acélból készült.

MÉG SZÉLESEBB MODULÁCIÓS TARTOMÁNY

Működés közben a teljesítmény 10-100% között változik a pillanatnyi szükségleteknek megfelelően.

DIGITÁLIS VEZÉRLÉSŰ LÁNGMODULÁCIÓ

Az elektronikus lángmoduláció folyamatos energia megtakarítás és emelt szintű komfort biztosítása mellett képes a fűtővíz, valamint a használati melegvíz hőmérsékletének megfelelő szabályozására.

ELŐKÉSZÍTVE KÜLSŐ TÁROLÓ CSATLAKOZATÁSÁRA

Használati melegvíz előállítására indirekt tároló csatlakoztatásával képes, melynek vezérlése a készülék alapfelszereltsége. A csatlakoztatáshoz motoros váltószelep készlet (opcionális) szükséges.

DIGITÁLIS KEZELŐFELÜLET

A digitális kezelőfelület biztosítja a készülék könnyű kezelhetőségét. A kézreálló gombokkal pontosan beállítható a hőmérséklet, illetve az egyéb paraméterek. A kijelző ábrák és kódok segítségével tájékoztat az aktuális üzemmódról és az esetleges hibákról.

BEÉPÍTETT IDŐJÁRÁSFÜGGŐ SZABÁLYOZÁS

Az időjárásfüggő szabályozás magasabb komfort mellett biztosít költséghatékonyabb üzemelést. Az elektronika a külső hőmérséklet függvényében változtatja a kazánvíz-hőmérsékletet, így energiát takarít meg és magasabb komfortot biztosít.

LEHETŐSÉG TÖBBKAZÁNOS RENDSZER KIÉPÍTÉSÉRE

A VICTRIX Pro készülékek az Immergas kaszkád és zóna szabályozója (opcionális) segítségével képesek többkazános (kaszkád, maximum 8 készülékig) rendszerben is együttműködni, így akár több, mint 900 kW hőteljesítményt nyújtva.

KONDENZÁCIÓS TECHNOLÓGIA

Az égéstermék rejtett hőjének (vízgőz tartalmának) kihasználása (kondenzációja) révén ugyanannyi energiát, mint a hagyományos, nem kondenzációs készülékek, kevesebb gáz eltüzelésével képesek leadni. A jobb tüzeléstechnikai hatásfok révén nem csak energiát takarít meg, hanem a környezetet is kevésbé terheli.

ARÁNYOS 0-10 V SZABÁLYOZÁSI LEHETŐSÉG

Az analóg bemeneten keresztül 0-10 V arányos szabályozással lehetőség van vagy a teljesítmény, vagy az előremenő fűtővíz hőmérséklet szabályzására.

"EASY CASCADE" TÖBBKAZÁNOS ÜZEMMÓD

Amennyiben legfeljebb két egyforma teljesítményű VICTRIX Pro készülék működik egy rendszerben, nincs szükség az Immergas kaszkád és zóna szabályozóra a kazánok vezérléséhez. Az Easy Cascade rendszernek köszönhetően ilyen összeállításban elegendő a kazánok saját, beépített vezérlésére hagyatkozni! 

IPX5D ELEKTROMOS VÉDETTSÉG

Magas páratartalmú és fröccsenő vizes környezetben is biztosítja a készülék biztonságos működését.

Méretek

BEFOGLALÓ MÉRETEK

Magasság

[mm]

Szélesség

[mm]

Mélység (C)
[mm]

Füstgáz evezetés / levegő bevezetés  mérete

[mm]

1038

600

627

Ø 80 / 125

 

 

CSATLAKOZÓ MÉRETEK

Fűtési

előremenő
M

Fűtési

visszatérő
R

Gáz


G

Kondenzvíz

elvezetés

SC

Elektromos

hálózat
V

1 1/2"

1 1/2"

1"

NÁ 25

23OV / 50Hz

Letölthető anyagok

CE Tanúsítvány
Kézikönyv
EU megfelelősségi nyilatkozat
Oldal tetejére