VICTRIX Zeus Superior 32 kW
- 32.0kW Névleges fűtési teljesítmény
- - Névleges HMV teljesítmény
- Fali beépített tárolós kombi Működés módja
- - Szezonális hatásfok (2010/30/EU)
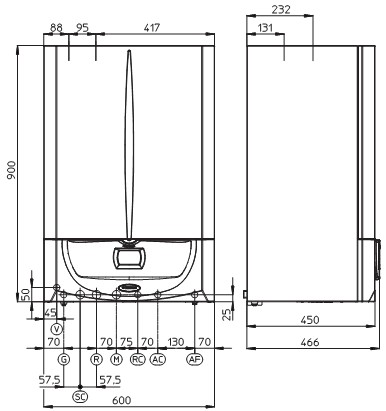
- 900 / 600 / 466 Méret (mag/szél/mély)
Bemutatás
Az VICTRIX Zeus Superior 32 kW kondenzációs fali gázkazán 32kW teljesítménnyel képes fűtési-, ill. 32kW teljesítménnyel tárolós rendszerben használati melegvizet előállítani. A VICTRIX Zeus Superior kW kazánok kompakt hidraulikai egysége kis szervizigényű és már 0,5 bar fűtési rendszernyomással is működik. A készülék az (opcionális) Super AMICO távszabályzóval könnyen és gyorsan, a készüléktől távolról is vezérelhető. Modulációs szivattyúja még takarékosabbá teszi a készüléket, hiszen a szivattyú fordulatszámát a vezérlő elektronika képes szabályozni. Külsőhőmérséklet-érzékelő (opcionális) csatlakoztatása esetén végtelen számú jelleggörbével működő időjárásfüggő szabályozás is lehetséges.
KÉT FÜGGETLEN HŐCSERÉLŐ
Mind a fűtési, mind a HMV hőcserélő rozsdamentes acélból készült.
DIGITÁLIS VEZÉRLÉSŰ LÁNGMODULÁCIÓ
Az elektronikus lángmoduláció folyamatos energia megtakarítás és emelt szintű komfort biztosítása mellett képes a fűtővíz, valamint a használati melegvíz hőmérsékletének megfelelő szabályozására.
DIGITÁLIS KEZELŐFELÜLET
A digitális kezelőfelület biztosítja a készülék könnyű kezelhetőségét. A kézreálló gombokkal pontosan beállítható a hőmérséklet, illetve az egyéb paraméterek. A kijelző ábrák és kódok segítségével tájékoztat az aktuális üzemmódról és az esetleges hibákról.
SZABÁLYOZHATZÓ BY-PASS
A beépített, szabályozható by-pass lehetővé teszi a kazán használatát termosztatikus szeleppel felszerelt radiátoros rendszer esetén is. A szabályozható by-pass optimális működést tesz lehetővé.
MOTOROS VÁLTÓSZELEP
A használati melegvíz előállításakor a beépített, motoros váltószelep irányítja a kazánvizet a HMV hőcserélő felé.
BEÉPÍTETT IDŐJÁRÁSFÜGGŐ SZABÁLYOZÁS
Az időjárásfüggő szabályozás magasabb komfort mellett biztosít költséghatékonyabb üzemelést. Az elektronika a külső hőmérséklet függvényében változtatja a kazánvíz-hőmérsékletet, így energiát takarít meg és magasabb komfortot biztosít. A készülék elektronikája tetszőleges szabályozási egyenes beállítását teszi lehetővé.
ROZSDAMENTES ACÉL MELEGVÍZTÁROLÓ
A beépített 54 literes űrtartalmú melegvíztároló lehetővé teszi a melegvíz felhasználást több csapoló, például két fürdőszoba egyidejű használata esetén is.
HMV TÁGULÁSI TARTÁLY
A HMV körben jelentkező nyomásnövekedés kompenzálására a Victrix Zeus Superior kW készülékek egy második beépített tágulási tartállyal is rendelkeznek a HMV kör számára.
EGYÜTTMŰKÖDÉS A DIM EGYSÉGEKKEL
A VICTRIX Zeus Superior kW készülékek teljes körűen képesek együttműködni az Immergas DIM egységeivel, így lehetséges több, egymástól független fűtési kör (akár radiátoros, akár kevert) kialakítása.
NAGYMÉRETŰ LCD KIJELZŐ
A nagyméretű kijelzőn a készülék számos információt közöl a felhasználóval. Megjeleníti a különböző működési jellemzőket, az aktuális funkciót (szivattyú utókeringtetés, égéstér szellőztetés, HMV készítés, stb.) vagy akár az üzemórák, gyújtások számát.
MODULÁCIÓS SZIVATTYÚ
A kazán keringtető szivattyújának sebességét a vezérlő elektronika mindig az optimálisra állítja be, hogy biztosítsa az előremenő és a visszatérő fűtővíz közötti hőmérsékletkülönbséget.
PROGRAMOZHATÓ TÁROLÓFŰTÉS
Az Immergas új távvezérlőjével, a Super AMICO-val, a VICTRIX Zeus Superior kW készülékek tárolójának fűtése a fűtési rendszerhez hasonlóan programozható. Időzíthető a normál és a csökkentett tároló hőmérséklet.
KONDENZÁCIÓS TECHNOLÓGIA
Az égéstermék rejtett hőjének (vízgőz tartalmának) kihasználása (kondenzációja) révén ugyanannyi energiát, mint a hagyományos, nem kondenzációs készülékek, kevesebb gáz eltüzelésével képesek leadni. A jobb tüzeléstechnikai hatásfok révén nem csak energiát takarít meg, hanem a környezetet is kevésbé terheli.
IPX5D ELEKTROMOS VÉDETTSÉG
Magas páratartalmú és fröccsenő vizes környezetben is biztosítja a készülék biztonságos működését.
Méretek
|
BEFOGLALÓ MÉRETEK |
||||
|
Típus |
Magasság [mm] |
Szélesség [mm] |
Mélység |
Füstgáz evezetés / levegő bevezetés mérete [mm] |
|
VICTRIX Zeus Superior 32 kW |
900 |
600 |
466 |
Ø 60/100 |

|
CSATLAKOZÓ MÉRETEK |
||||||||
|
Típus |
Fűtési előremenő |
Fűtési visszatérő |
Használati melegvíz |
HMV cirkuláció |
Használati hidegvíz |
Kondenzvíz elvezetés |
Gáz
|
Elektromos |
|
VICTRIX Zeus Superior 32 kW |
3/4" |
3/4" |
1/2" |
1/2" |
1/2" |
NA15 |
1/2" |
22OV / 50Hz |